icon-valuation£ Request free valuation
icon-bed 3 bedrooms icon-shower 1 bathrooms
3-bed detached Bellway house in quiet cul-de-sac. uPVC glazing, gas heating, conservatory, utility, refitted wet room, double garage, west-facing garden. Scope to update or extend. NO UPPER CHAIN.

BEAUTIFULLY SITUATED 3 BEDROOMED DETACHED HOUSE which was built in the early 1990s by Bellway on a generous plot. This property is located at the head of a quiet cul-de-sac with a pleasant open aspect from the front elevation and a good sized rear garden which has a sunny westerly aspect. This house also has the advantage of uPVC double glazing, gas central heating, PVC fascias, guttering & roofline, downstairs WC, living room with uPVC double glazed conservatory off, kitchen with utility room off, refitted wet room to the first floor alongside 3 bedrooms, generous double garage with roll over doors, block paved driveway providing off road standage for 2 vehicles, gardens to front & rear and 2 gated side entrances. There is superb potential for a prospective purchaser to update, reconfigure or extend to suit their specific needs.

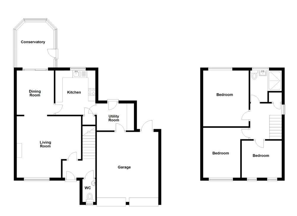
On the ground floor:  hallway, downstairs WC, lounge, dining room, conservatory, kitchen and utility room. On the 1st floor: landing, wet room and 3 bedrooms. Externally: double garage and large gardens to front & rear.

This property is situated at the head of a quiet cul-de-sac, very close to North Tyneside General Hospital, convenient for several supermarkets, strong road links providing access to both Silverlink & Cobalt business parks as well as the coast and surrounding areas, bus services which connect up with Whitley Bay & North Shields Town centres, and in the catchment area for good local Schools.

ON THE GROUND FLOOR:

ENTRANCE LOBBY: with radiator.

CLOAKROOM: with low level WC, washbasin, radiator & uPVC double glazed window.

LOUNGE: to the front 14’9″ x 13’9″ (4.50m x 4.19m max overall measurement) with radiator, uPVC double glazed window, fireplace & arch to dining room.

DINING ROOM: 9’11” x 8’8″ (3.02m x 2.64m) with double radiator & patio door to conservatory.

CONSERVATORY: 8’6″ x 10’1″ (2.59m x 3.07m) with radiator, ceiling fan & uPVC double glazed door to rear garden.

KITCHEN: 9’10” x 8’11” (3.00m x 2.72m) with fitted wall & floor units, ‘Whirlpool’ hob, ‘Indesit’ oven, radiator, uPVC double glazed window plus large fitted understairs store cupboard.

UTILITY ROOM: 8’4″ x 6’2″ (2.54m x 1.88m) with fitted wall & floor units, plumbing for washing machine, radiator, door to rear garden & door to garage.

ON THE FIRST FLOOR:

LANDING: with airing cupboard & uPVC double glazed window.

3 BEDROOMS

No. 1: to the rear 10’7″ x 12’11” (3.23m x  3.94m) with radiator & uPVC double glazed window.

No. 2: to the front 11’1″ x 8’11” (3.38m x 2.72m) with radiator & uPVC double glazed window.

No. 3: to the front 8’9″ x 8’4″ (2.67m x  2.54m) with radiator & 2 uPVC double glazed windows.

SHOWER ROOM: with walk-in shower unit with ‘Mira’ shower, pedestal washbasin, low level WC, upright stainless steel towel radiator, shaver point, panelled walls & uPVC double glazed window.   

EXTERNALLY:

GARAGE: 16’4″ x 16’6″ (4.98m x 5.03m) with 2 roll over doors, power, light & storage in roof space.   

GARDENS: to the front there is a block paved drive  providing 2 car standage, lawn & borders. The rear  garden is west facing measuring approx. 36ft long   by 57ft wide (11.07m x 17.37m) with lawn, borders, greenhouse, wood shed, tap & gated side entrance.

TENURE:  Freehold. Council Tax Band: D

Abbots Way,
Preston Farm,
NE29 8LX floorplan

Click on the link below to view energy efficiency details regarding this property.

Energy Efficiency - Abbots Way, Preston Farm, North Shields, NE29 8LX (PDF)

Map and Local Area

Request a Viewing

To request further information or a viewing, please complete the form below.

Similar Properties

Keep up to date with our latest property alerts