WELL SITUATED 4 BEDROOMED SEMI-DETACHED HOUSE. This property has the benefit of uPVC double glazing, gas central heating (combi. boiler), two ground reception rooms, drive for car standage and a sunny west-facing rear garden.
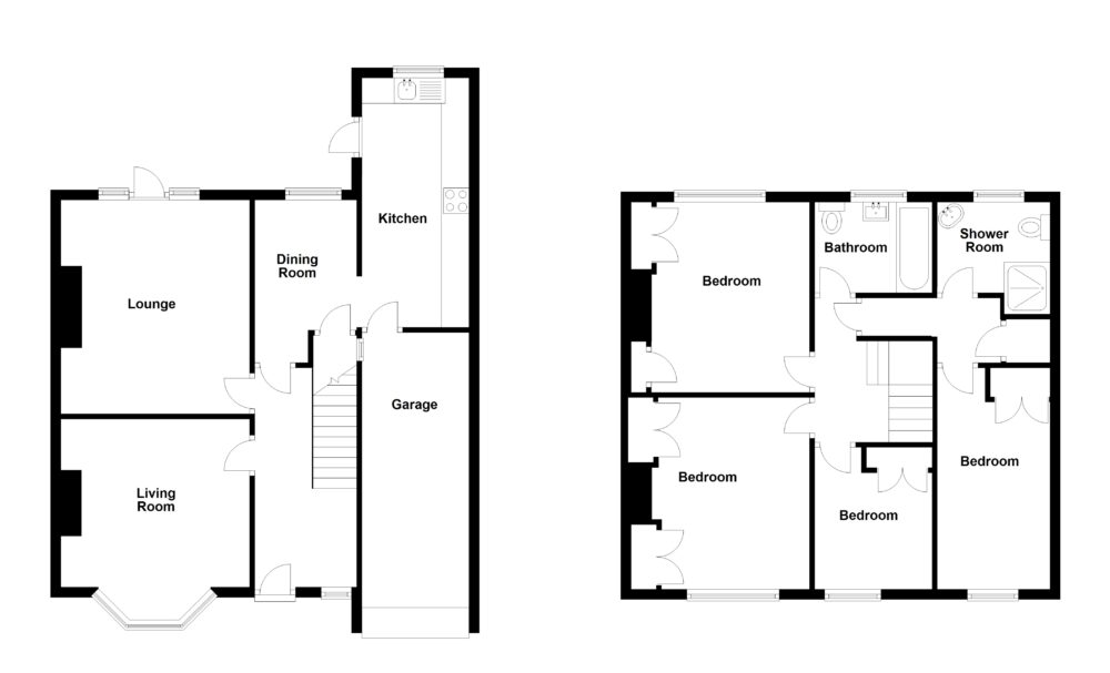
The accommodation briefly comprises- On the ground floor: Hall, lounge, separate dining room, breakfast room and kitchen. On the first floor: Landing, four bedrooms, bathroom and separate shower room. Externally: Garage, Gardens – drive at front providing car standage & sunny west-facing rear garden.
Haig Avenue is ideally located close to all local amenities including those of Whitley Bay Town Centre and Monkseaton Front Street where there is access to transport links including both bus and metro services. It is also in the catchment area for 3 good local Schools.
ON THE GROUND FLOOR:
ENTRANCE HALL: radiator, stain glass window & stairs to 1st floor.
LOUNGE: at front 11’ 11” x 12’ 11” (3.63m x 3.94m) including uPVC double glazed bay window, radiator, picture rail and fireplace with fitted gas fire.
DINING ROOM: at rear 11’ 11” x 14’.0” (3.63m x 4.27m) radiator, dado rail, built in cupboards, fireplace with fitted gas fire, uPVC double glazed door leading to rear garden.
BREAKFAST ROOM: 6’ 5” x 9’ 10” (1.96m x 3.00m) including fitted pantry, radiator, uPVC double glazing and cupboard containing ‘Baxi’ Combi boiler.
KITCHEN: 16’ 1” x 6’ 9” (4.90m x 2.06m) uPVC double glazing, radiator, gas cooker, ‘Bosch’ washing machine, stainless steel sink unit, uPVC double glazed door to rear garden and door leading to garage.
ON THE FIRST FLOOR:
LANDING
4 BEDROOMS
No. 1: at front 12’ 3” x 9’ 2” (3.73m x 2.79m) plus 2 double fitted wardrobes, radiator and uPVC double glazed window.
No. 2: at rear 12’ 3” x 9’ 2” (3.73m x 2.79m) plus doubled fitted wardrobe, radiator and uPVC double glazed window.
No. 3: at front 7’ 2” x 7’ 4” (2.18m x 2.24m) plus double fitted wardrobe and uPVC double glazed window.
No. 4: over garage 6’ 9” x 12’ 3” (2.06m x 3.73m) plus fitted wardrobe and uPVC double glazed window.
NNER HALL: with large fitted linen cupboard.
SHOWER ROOM: uPVC double glazed window, low level WC, vanity unit and a fully fitted shower cubicle.
BATHROOM: part tiled walls, panelled bath with shower over, pedestal wash basin, low level WC, radiator and uPVC double glazed window.
EXTERNALLY:
GARAGE: 18’ 9” x 6’ 10” (5.71m x 2.08m) plus fitted store cupboard, up and over door, power, light and tap.
GARDENS: the front has a drive providing car standage, the sunny west-facing rear garden measuring approx 41ft long (12.50m) with lawn & borders.
TENURE: Freehold.
Council Tax Band: C

Click on the link below to view energy efficiency details regarding this property.
Energy Efficiency - Haig Avenue, Whitley Bay, NE25 8JG (PDF)
Map and Local Area
Similar Properties

Dukesfield, Earsdon View, NE27 0EZ

Shaftesbury Crescent, Marden, NE30 3LS
