icon-valuation£ Request free valuation
icon-bed 4 bedrooms icon-shower 2 bathrooms
CHARMING, MOCK TUDOR STYLE FOUR BEDROOMED SEMI-DETACHED HOUSE OF CHARACTER located in an excellent residential area adjoining Souter Park Bowling Green and Churchill playing fields.

We are delighted to offer for sale this CHARMING, MOCK TUDOR STYLE FOUR BEDROOMED SEMI-DETACHED HOUSE OF CHARACTER located in an excellent residential area adjoining Souter Park Bowling Green and Churchill playing fields. This property, built in 1931 benefits from double glazing, gas central heating (combi-boiler), cloakroom, entrance hall with feature leaded & stained glass door, lounge to the rear with double doors leading to garden, dining room room to the front with bay window incorporating window seat, fitted kitchen with folding doors opening to conservatory, master bedroom with en-suite shower room, 3 further bedrooms, spacious bathroom, long rear garden measuring approx. 66ft long which is not overlooked.

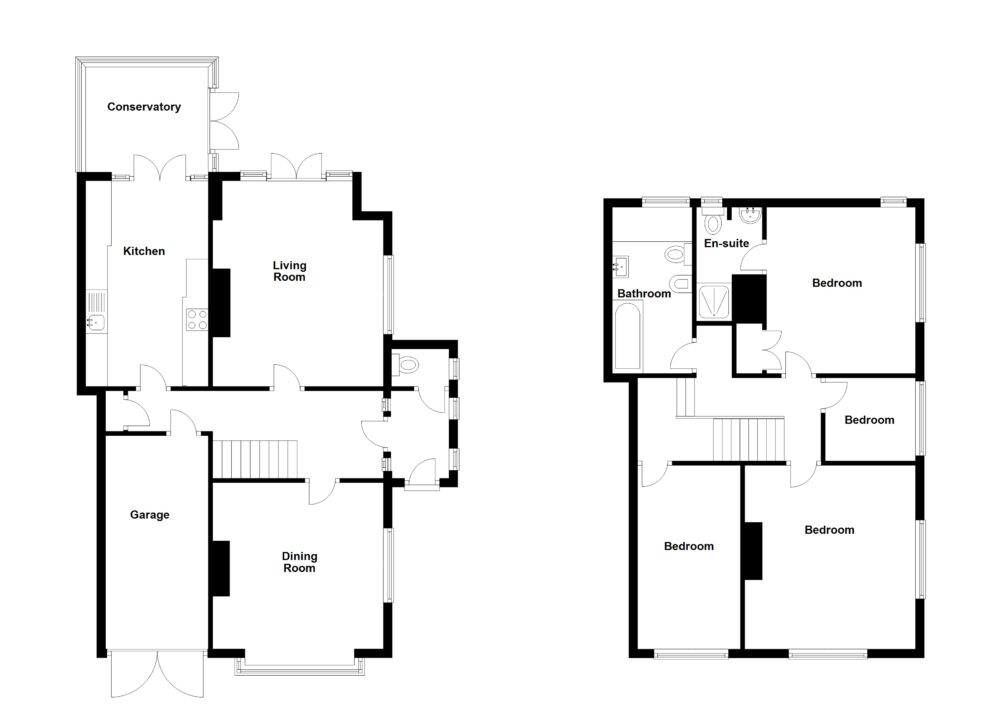
The accommodation on offer briefly comprises: On the ground floor: porch, cloakroom, entrance hall, lounge, dining room, fitted kitchen & conservatory.  On the 1st floor: split level landing, master bedroom with en-suite shower room, 3 further bedrooms & bathroom. Externally: the front is mostly paved for car standage, the rear has shaped lawn & borders and covered patio area with glass roof.

Hartley Avenue is a much sought after residential street, situated in the heart of Monkseaton, just off Marine Avenue. This house is very close to local amenities including those of Monkseaton Front Street & Monkseaton Metro station, also convenient for bus services which connect up with Whitley Bay Town centre and surrounding areas and is in the catchment area for and within easy walking distance of 3 outstanding local Schools. The ‘Waggonways’ nature route runs behind the property which offers a lovely walk through to Seaton Delaval via Holywell, Churchill Playing Fields is located at the end of the street and it is also very easy to walk into Whitley Bay Town Centre via Norham Road.

ON THE GROUND FLOOR:

PORCH: with 2 double glazed windows & double radiator.

CLOAKROOM: with low level WC, washbasin & upright stainless steel towel radiator.

ENTRANCE HALL: with feature leaded &    stained-glass door, double radiator, delft rack & fitted cloaks cupboard.

LOUNGE: at rear 12’10” x 15’3″ (3.91m x 4.65m) with double radiator, attractive marble fireplace with fitted gas fire, uPVC double glazed window & double-glazed double doors leading to rear garden.

DINING ROOM: at front 14’2″ x 13’0″ (4.32m x 3.96m) including uPVC double glazed bay window incorporating window seat, marble     fireplace with fitted gas fire, double radiator & 2nd uPVC double glazed window. 

FITTED KITCHEN: 9’1″ x 15’9″ (2.77m x 4.80m) fitted wall & floor units, 2 ‘Neff’ ovens, ‘Neff’ hob with extractor hood above, ‘Neff’ microwave, belfast sink, double radiator, 15 concealed downlighters,  cupboard containing ‘Worcester’ combi boiler & folding doors opening to double glazed conservatory.

CONSERVATORY: 10’4″ x 8’4″ (3.15m x 2.54m) with double glazed doors to rear garden with Churchill playing fields beyond & Souter Park bowling green to the side.

ON THE FIRST FLOOR:

SPACIOUS SPLIT LEVEL LANDING with   radiator, feature leaded & stained-glass windows & part vaulted ceiling.

4 BEDROOMS

No. 1: to the rear and side 10’8″ x 12’5″ (3.25m x 3.78m) plus double fitted wardrobe, double radiator, 2 uPVC double glazed windows with views over Souter Park.

EN-SUITE SHOWER ROOM: with tiled shower cubicle containing ‘Mira Excel’ shower, low level WC, pedestal washbasin, extractor fan, upright stainless-steel towel radiator, 4 concealed downlighters & uPVC double glazed window.   

No. 2:  to the front & side 12’10” x 13’9″ (3.91m x 4.19m) with 2 uPVC double  glazed window with views over Souter                      Park & double radiator.

No. 3: to the front 7’4″ x 13’10” (2.24m x 4.22m) including fitted wardrobes, double radiator & uPVC double glazed window.

No. 4: to the side 6’7″ x 6’6″ with double  radiator & uPVC double glazed window  with views over Souter Park.        

BATHROOM: 6’0″ x 12’9″ (1.83m x 3.89m) with Amtico flooring, panelled bath with shower attachment on taps, bidet, low level WC, pedestal washbasin, partially tiled walls, upright towel radiator, 8 concealed downlighters & uPVC double glazed window.  

EXTERNALLY:

GARAGE: 16’4″ x 7’4″ (4.98m x 2.24m max internal measurement) with double doors, power, light, radiator, tap & plumbing for washing machine.  

GARDENS: the front garden is paved for car standage, paved gated side entrance with tap. The rear  garden is approx. 66ft long and overlooks & adjoins Churchill Playing fields & Souter Park bowling green with shaped lawn & borders, shed, covered patio area with glass roof and is not overlooked.

TENURE:  Freehold. Council Tax Band: D

Hartley Avenue,
Whitley Bay,
NE26 3NT floorplan

Click on the link below to view energy efficiency details regarding this property.

Energy Efficiency - Hartley Avenue, Whitley Bay, NE26 3NT (PDF)

Map and Local Area

Request a Viewing

To request further information or a viewing, please complete the form below.

Similar Properties

Keep up to date with our latest property alerts