icon-valuation£ Request free valuation
icon-bed 4 bedrooms icon-shower 2 bathrooms
We are delighted to offer for sale this REMARKABLE, BEAUTIFULLY UPDATED AND PRESENTED FOUR BEDROOMED DOUBLE FRONTED DETACHED HOME which was built by Bellway approx. 1995 on a generous corner plot.

We are delighted to offer for sale this REMARKABLE, BEAUTIFULLY UPDATED AND PRESENTED FOUR BEDROOMED DOUBLE FRONTED DETACHED HOME which was built by Bellway approx. 1995 on a generous corner plot. This immaculate family home has the advantage of uPVC double glazing, gas central heating (combi boiler), downstairs WC, 2 ground floor reception rooms, large uPVC double glazed conservatory, refitted & extended dining kitchen/family room with splendid garden aspect, refitted en-suite shower room to the main bedroom, refitted family bathroom, well maintained and established gardens to the front and rear the latter of which has a sunny south facing aspect, larger than average garage with electric door and paved driveway providing off road vehicle standage.

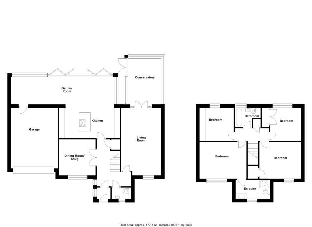
On the ground floor: lobby, hallway, downstairs WC, dining room/2nd reception room, lounge, conservatory and dining kitchen / family room. On the 1st floor: landing, bathroom and 4 bedrooms – the main with en-suite shower room. Externally: driveway, garage and gardens to front and rear.

Occupying a desirable position on a corner plot, within this well-established residential area of North Shields, close to Preston village, this property benefits from excellent access to a wide range of amenities including local shops, well-regarded schools and North Tyneside General Hospital. The A1058 Coast Road is just moments away, providing convenient access into Newcastle city centre, while the stunning coastline including Tynemouth Longsands, Fish Quay and vibrant village atmosphere of Tynemouth are all within easy reach. This is a superb location offering both convenience and lifestyle appeal, ideal for a variety of purchasers.

ON THE GROUND FLOOR:

LOBBY: uPVC double glazed window, roman blind, composite front door and tiled floor.

HALL: roman blind, cloaks cupboard, roller blind, double banked radiator, uPVC double glazed window, oak flooring, timber & glass feature staircase to the first floor and understairs store cupboard.

DOWNSTAIRS WC: refitted, uPVC double glazed window, vanity unit with washbasin, low level WC and upright stainless steel towel radiator.

DINING ROOM / SECOND RECEPTION ROOM: 10’ 2’ x 10’ 1” (3.10m x 3.07m), oak flooring, double banked radiator, uPVC double glazed window with roller blind and glazed double opening doors leading to hallway.

LOUNGE: 19’ 7” x 11’ 6” (5.97m x 3.51m), roller blind, 2 double banked radiators, uPVC double glazed window, attractive fireplace incorporating coal effect living flame gas fire, and uPVC double glazed double opening doors & side windows leading to conservatory.

CONSERVATORY: 16’ 0” x 9’ 8” (4.88m x 2.95m), roller blind, uPVC double glazed, limestone tiled floor, power, 2 fitted wall lights, 2 electric roof windows, electric heater and double opening doors leading to rear garden.

DINING KITCHEN / FAMILY ROOM: 30’ 4” x 18’ 8” (9.25m x 5.69m – maximum overall L shaped measurement)

Kitchen area: a good range of hi-gloss fitted wall & floor units, kitchen island with ‘Baumatic’ ceramic hob, extractor fan, 2 ‘Smeg’ eye level ovens, integrated fridge & freezer, integrated dishwasher, ‘Blanco’ inset sink, 6 concealed downlighters and upright panelled radiator.

Dining / Family area: uPVC double glazed windows, glass tinted roof, upright double radiator, numerous concealed down lighters and 2 sets of bi-folding doors overlooking and giving access to the rear garden.

ON THE FIRST FLOOR:

LANDING: airing cupboard with radiator.

BATHROOM: roller blind, refitted, panelled bath with shower over, tiled splash & screen, part tiled walls, vanity unit with washbasin & WC, extractor fan, stainless steel towel radiator, mirrored medicine cabinet and uPVC double glazed window.

4 BEDROOMS

No. 1: at front, 13’ 5” x 10’ 3” (4.09m x 3.12m), double banked radiator, uPVC double glazed window with roller blind and door to en-suite.

EN-SUITE SHOWER ROOM: refitted, 10’ 0” x 6’ 6” (3.05m x 1.98m), large tiled shower enclosure, upright stainless steel towel radiator, vanity unit with washbasin, wall hung cupboard, uPVC double glazed window with roller blind, back to wall WC, tiled floor, part tiled walls, extractor fan and PVC ceiling incorporating 6 concealed down lighters.

No. 2: at front, 11’ 10” x 10’ 3” (3.61m x 3.12m), plus fitted wardrobe, radiator and uPVC double glazed window.

No. 3: at rear, 9’ 2” x 8’ 10” (2.79m x 2.69m), plus double fitted wardrobe, venetian blind, radiator and uPVC double glazed window.

No. 4: at rear, 9’ 3” x 8’ 0” (2.82m x 2.44m), plus fitted wardrobes all along one wall, venetian blind, radiator and uPVC double glazed window.

EXTERNALLY:

GARAGE: 17’ 0” x 14’ 2” (5.18m x 4.32m), electric roll over door, worktop to the rear of the garage, plumbing for washing machine, vent for dryer, sink with hot & cold water supplies, ‘Baxi’ Duo-Tec gas fired combination boiler, power, light and storage in roof space.

GARDENS: the front garden has block paved walkways, wrought iron railing perimeter, shaped lawns, well established and maintained planted borders and paved driveway for off road vehicle standage. The rear garden has a sunny southerly aspect, paved patio, shaped lawn, well established and maintained planted borders, gated side entrance, fenced perimeters and is not directly overlooked with an open aspect.

TENURE: FREEHOLD. COUNCIL TAX BAND: F

Monks Wood,
North Shields,
NE30 2UA floorplan

Click on the link below to view energy efficiency details regarding this property.

Energy Efficiency - Monks Wood, North Shields, NE30 2UA (PDF)

Map and Local Area

Request a Viewing

To request further information or a viewing, please complete the form below.

Similar Properties

Keep up to date with our latest property alerts