icon-valuation£ Request free valuation
icon-bed 3 bedrooms icon-shower 1 bathrooms
SUPERBLY SITUATED 3 BEDROOMED SEMI-DETACHED HOUSE which is well positioned on Westley Avenue offering a fairly open aspect from the front looking over the green. Benefits include attractive double bay window, paved driveway, garage, 2 ground floor reception rooms and sunny south facing garden.

SUPERBLY SITUATED 3 BEDROOMED SEMI-DETACHED HOUSE which is well positioned on Westley Avenue offering a fairly open aspect from the front looking over the green. Benefits also include an attractive double bay window to the front elevation, paved driveway, garage, extended porch, 2 ground floor reception rooms, uPVC double glazed conservatory, breakfasting kitchen and sunny south facing rear garden. This property has been priced to reflect current condition allowing for refurbishment and provides a superb opportunity to upgrade, reconfigure and potentially extend (subject to PP) to suit the needs of a prospective purchaser.

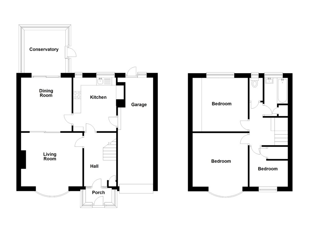
On the ground floor: porch, hallway, lounge, dining room, conservatory and kitchen. On the 1st floor: landing, bathroom, separate WC and 3 bedrooms. Externally: garage and gardens to both front & rear.

Westley Avenue is a sought-after residential street in the popular area of Brierdene running between Astley Drive and The Links. Westley Avenue is perfectly located within easy walking distance of the beach & sea front, the Briar Dene Nature Park, Whitley Bay Golf Course, local bus services and local schools. This property is also within the catchment area for Whitley Lodge First School, Valley Gardens Middle School and Whitley Bay High School.

NO UPPER CHAIN

ON THE GROUND FLOOR:

uPVC DOUBLE GLAZED PORCH

HALL: cloaks cupboard, radiator and delft rack.

LOUNGE: to the front 13’2″ x 14’8″ (4.01m x 4.47m) including uPVC double glazed bay window, radiator, fireplace and glazed doors to dining room.

DINING ROOM: at the rear 10’11” x 11’5″ (3.33m    x 3.48m) with radiator and double-glazed patio door to conservatory.   

uPVC DOUBLE GLAZED CONSERVATORY: 9’7″ x 9’0″ (2.92m x 2.74m) with uPVC double glazed door to rear garden.

BREAKFASTING KITCHEN: 9’3″ x 11’6″ (2.82m x 3.51m) with fitted wall and floor units, stainless steel sink, partially tiled walls, radiator and 2 uPVC double glazed windows.

ON THE FIRST FLOOR:

LANDING – uPVC double glazed window.

3 BEDROOMS

No. 1: to the front 14’9″ x 12’0″ (4.50m x 3.66m) including double glazed bay window with open aspect over ‘The Green’ and radiator.           

No. 2: 11’6″ x 9’11” (3.51m x 3.02m) plus fitted wardrobes all along one wall, radiator and uPVC double glazed window with vertical louvre blinds.

No. 3: 8’6″ x 8’3″ (2.59m x 2.51m max overall measurement) including fitted cupboard, radiator and uPVC double glazed window with a fairly open aspect over green.           

BATHROOM: panelled bath with shower over, pedestal washbasin, upright stainless steel towel radiator, partially tiled walls, airing cupboard containing ‘Worcester’ combi-boiler and uPVC double glazed window.   

SEPARATE WC: low level WC and uPVC double glazed window.

EXTERNALLY:

GARAGE: 24’8″ x 7’6″ (7.52m x 2.29m) narrowing to 5’7″ (1.70m) at the rear with up and over door, power, light, fitted cupboard and uPVC double glazed door to rear garden.   

GARDENS: to the front there is a driveway providing car standage, lawn and borders. The rear garden faces south, is not overlooked and measures approximately 50′ (15.24m) long.

TENURE:  Freehold. Council Tax Band: C

Westley Avenue,
Brierdene, Whitley Bay,
NE26 4NW floorplan

Click on the link below to view energy efficiency details regarding this property.

Energy Efficiency - Westley Avenue, Whitley Bay, NE26 4NW (PDF)

Map and Local Area

Request a Viewing

To request further information or a viewing, please complete the form below.

Similar Properties

Keep up to date with our latest property alerts