icon-valuation£ Request free valuation
icon-bed 4 bedrooms icon-shower 1 bathrooms
Spacious 4 bedroom detached home. Larger-style Bellway home (mid-1970s) with buyer-specified alterations, occupying a generous corner plot at the entrance of Haddington Road and overlooking Beaumont Drive with open farmland views.

SUPERBLY SITUATED AND GENEROUSLY PROPORTIONED FOUR BEDROOMED DETACHED HOUSE which was built to the larger-style by Bellway in the mid 1970s and benefits from some slight structural differences as per the buyers instructions at that time. This property has been occupied by the original owners since new and has the advantage of being located at the entrance of Haddington Road, on a spacious corner plot, adjoining and overlooking Beaumont Drive to the side providing open farmland views beyond. Benefits also include gas central heating, an extended orangery to the rear elevation, porch, larger than average hallway, downstairs WC, 2 good sized reception rooms, breakfasting kitchen, utility room, 4 bedrooms – 2 of which have open farmland views, double block paved driveway, sunny westerly facing rear garden and larger than average garage.

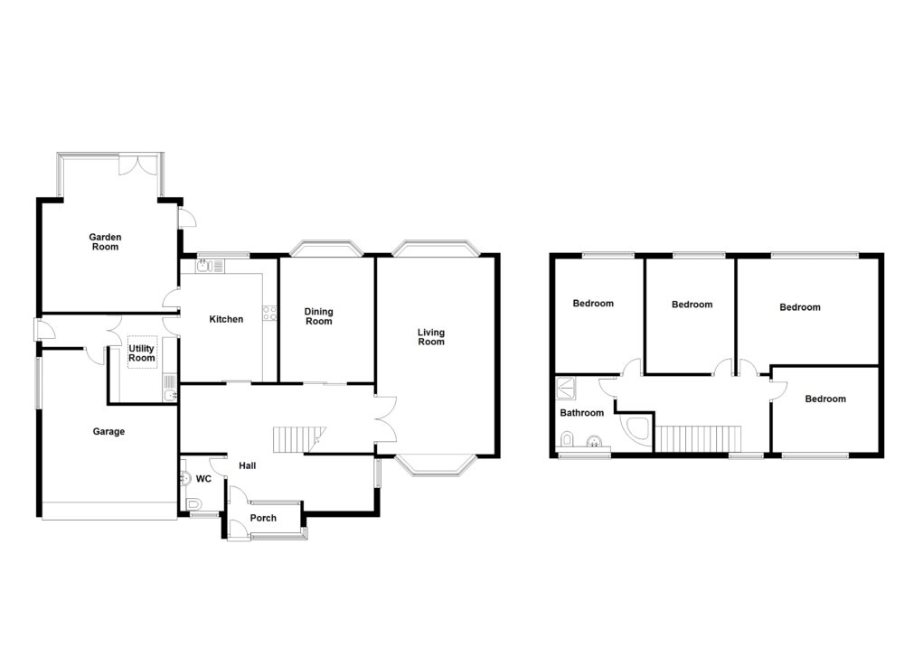
On the ground floor: porch, hallway, lounge, dining room, kitchen, utility room and orangery. On the 1st floor: landing, family bathroom and 4 bedrooms. Externally: garage, driveway and gardens to both front and rear.

This property is situated in an excellent position on Haddington Road on a west-backing site, close to local amenities including Sainsbury’s Supermarket & West Monkseaton Metro station, convenient for bus services which connect up with Whitley Bay Town centre & Metro system and is in the catchment area for Southridge First School (ages 5-9), Valley Gardens Middle School (ages 9-13) and Whitley Bay High School (ages 13-18). This property also affords easy access to the ‘Waggonways’ nature route via Beaumont Drive which connects Seaton Delaval to Monkseaton, the beach, sea front, Whitley Bay Golf Course and ‘Waves’ Leisure Centre are also a short drive away.

ON THE GROUND FLOOR:

PORCH: tiled floor and glazed door & screen leading to hallway.

HALL: spacious and larger than average offering an ideal space to create an office or area to work from home, 21’ 10” x 12’ 11” (6.65m x 3.94m – maximum overall measurement), open tread staircase to first floor, parquet tiled floor, 2 double banked radiators, delft rack, feature fireplace incorporating electric fire and doors to reception rooms and downstairs WC.

DOWNSTAIRS WC: radiator, feature leaded & stained glass window and vanity unit with tiled splashback incorporating washbasin & WC.

LOUNGE: 21’ 5” x 13’ 3” (6.53m x 4.04m) with double glazed Oriel bay windows to each end, stone fireplace & hearth with brick recess incorporating electric fire, glazed double opening doors to hallway, archway to dining room and double banked radiator.

DINING ROOM: at rear, 13’ 8” x 10’ 5” (4.17m x 3.17m) plus double glazed Oriel bay window, double banked radiator, archway to lounge and glazed sliding doors to hallway.

BREAKFASTING KITCHEN: 13’ 8” x 10’ 10” (4.17m x 3.30m), ‘Amtico’ flooring, part tiled walls, a good range of fitted wall & floor units, integrated ‘Kenwood’ microwave, ‘Stoves’ electric hob with illuminated extractor hood above, ‘AEG’ under bench double oven, 1 ½ bowl sink with drainer & mixer tap, integrated fridge, double glazed window with roller blind, cupboard housing ‘Vaillant’ gas fired condensing boiler and doors to orangery & utility room.

ORANGERY: at rear, 17’ 1” x 14’ 11” (5.21m x 4.55m), double glazed windows overlooking the rear garden, 19 concealed down lighters, double banked radiator, electric opening window to the roof lantern, and door to rear garden.

UTILITY ROOM: 9’ 9” x 7’ 8” (2.97m x 2.34m), sink with hot & cold water supplies, plumbing for washing machine and dishwasher, fitted floor cupboards, roof lantern and door to rear lobby / garage.

REAR LOBBY: with door to side entrance and door to garage.

ON THE FIRST FLOOR:

LANDING: 12’ 4” x 8’ 9” (3.76m x 2.67m), full length double glazed window offering an open aspect overlooking Beaumont Drive with farmland views beyond and double banked radiator.

BATHROOM: 10’ 11” x 8’ 10” (3.33m x 2.69m – maximum overall L shaped measurement), fully tiled walls, leaded & stained glass feature window, vanity unit with washbasin & WC, corner bath, separate shower cubicle and heated towel rail.

4 BEDROOMS

No. 1: at rear, 13’ 7” x 11’ 9” (4.14m x 3.58m) plus fitted wardrobes all along one wall, chest of drawers and uPVC double glazed window offering pleasant open views over farmland.    

No. 2: at rear, 12’ 8” x 9’ 9” (3.86m x 2.97m) with uPVC double glazed window.

No. 3: at rear, 12’ 8” x 9’ 9” (3.86m x 2.97m) including fitted wardrobe, dressing table & chest of drawers, and uPVC double glazed window.             

No. 4: at front, 11’ 7” x 9’ 8” (3.53m x 2.95m), double glazed window offering an open aspect overlooking Beaumont Drive with farmland views beyond.  

EXTERNALLY:

GARAGE: 15’ 8” wide x 12’ 6” long (4.78m x 3.81m) plus utility area, up & over door, power, light and tap for hosepipe.  

GARDENS: that at the front has a double block paved driveway providing off road standage for 2 vehicles, shaped lawn, rockery and well-maintained, planted & well established borders.  The rear garden measures approx. 38’ 3” long x 71’ 0” wide (11.66m x 21.64m), has a sunny westerly aspect, fenced perimeter, 2 shaped lawns, planted borders, external power supply, paved patio, 2 wood sheds, water feature with rockery and 14’ 8” (4.47m) gated side entrance.

TENURE:  FREEHOLD.    COUNCIL TAX BAND: F

Haddington Road,
Beaumont Park, Whitley Bay,
NE25 9UX floorplan

Click on the link below to view energy efficiency details regarding this property.

Energy Efficiency - Haddington Road, Beaumont Park, Whitley Bay, NE25 9UX (PDF)

Map and Local Area

Request a Viewing

To request further information or a viewing, please complete the form below.

Similar Properties

Keep up to date with our latest property alerts