icon-valuation£ Request free valuation
icon-bed 4 bedrooms icon-shower 3 bathrooms
LUXURY FOUR BED DETACHED FAMILY HOME located in a first class positionwith splendid open views over the sea, Duchess Dene & towards the Lighthouse. This beautiful family home is in impeccable condition and has been thoughtfully updated, modernised, extended & reconfigured throughout.

We are delighted to offer for sale this LUXURY FOUR BEDROOMED DETACHED FAMILY HOME located in a first class position backing on The Links with splendid open multi aspect views towards St Marys Lighthouse and over Duchess Dene with the Sea beyond. This beautiful family home is in impeccable condition and has been thoughtfully updated, modernised, extended and reconfigured throughout now providing modern, spacious accommodation. Benefits include a very large block paved driveway providing off road standage for numerous vehicles, double garage, an extension to the front elevation, balcony to the first floor elevation offering fabulous views, PVC fascias & guttering, uPVC double glazing, gas central heating (combi boiler), 4 ground floor reception rooms, oak flooring throughout the ground floor, oak internal doors, recently fitted ground floor shower room, refitted breakfasting kitchen, refitted family bathroom, 4 bedrooms – 2 of which have access to the balcony, the main bedroom has a refitted en-suite bathroom and 2 of the bedrooms have access to a Jack & Jill en-suite toilet and landscaped rear garden.

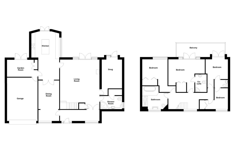
On the ground floor: hallway, dining room, breakfasting kitchen, living room, second lounge/study, shower room and garden room. On the 1st floor: landing, family bathroom, 4 bedrooms – 1 with en-suite, 2 with access to en-suite WC. Externally: double garage, large driveway and good sized rear garden.

This property is situated in a beautiful position backing onto The Links within a quiet cul-de-sac offering an open westerly aspect looking up Kingston Drive. The beach and sea front are a mere stone’s throw away as well as the Tavern & Galley pub & restaurant, St Marys Lighthouse, and Briardene nature park. Waves leisure centre, Whitley Lodge Shops and Whitley Bay Golf Course are a short walk away and the property is in the catchment area for outstanding local schools including Whitley Lodge First School, Valley Gardens Middle School and Whitley Bay High School. There are good road links nearby including Monkseaton Drive giving access to the Earsdon Bypass and wider coastal area.

NO UPPER CHAIN

ON THE GROUND FLOOR:

HALLWAY: 17’ 5” x 4’ 10” (5.31m x 1.47m) accessed via composite front door, uPVC double glazed side windows, uPVC double glazed window with venetian blind, oak flooring, 8 concealed down lighters and radiator.

DINING KITCHEN: 22’ 6” x 12’ 9” (6.86m x 3.89m), a good range of white hi-gloss fitted wall & floor units, kick space LED lights, granite illuminated work surfaces, fitted breakfast bar with granite benchtop & upstands, kitchen island with granite worksurface incorporating 1½ bowl inset sink & mixer spray tap, 5 ring gas hob with illuminated extractor hood above, under bench oven, integrated dishwasher, integrated fridge/freezer, 24 concealed down lighters, oak flooring, radiator, uPVC double glazed window and uPVC double glazed double opening doors leading to and overlooking the rear garden with sea views beyond.

DINING ROOM: at front, 18’ 10” x 9’ 8” (5.74m x 2.95m), radiator, oak flooring, uPVC double glazed window with plantation shutters, 4 concealed down lighters, and glazed double opening doors leading to kitchen.

GARDEN ROOM: 11’ 3” x 7’ 9” (3.43m x 2.36m), tiled floor, 8 concealed down lighters, double fitted cupboard housing ‘Baxi’ gas fired combination boiler, upright radiator and uPVC double glazed double opening doors to rear garden with roller blinds and sea views beyond.

LIVING ROOM: 22’ 3” x 16’ 4” (6.78m x 4.98m), 2 radiators, oak flooring, concealed downlighters, feature fireplace incorporating log burner, part panelled walls, uPVC double glazed double opening doors with vertical louvred blinds leading to the rear garden with sea views beyond, 2 illuminated display alcoves, understairs store cupboard and feature oak & glass staircase to first floor.

LOUNGE/STUDY: 12’ 8” x 8’ 5” (3.86m x 2.57m), modern upright radiator and uPVC double glazed double opening doors with vertical louvred blinds leading to rear garden and oak flooring.

SHOWER ROOM: 10’ 0” x 5’ 8” (3.05m x 1.73m), tiled walls & floor, upright radiator, vanity unit with washbasin & infinity mixer tap, low level WC, separate tiled shower cubicle, PVC ceiling with 6 concealed down lighters, extractor fan, large fitted linen cupboard, uPVC double glazed window with plantation shutters and illuminated wall mounted display units.

ON THE FIRST FLOOR:

LANDING: uPVC double glazed window with open aspect and plantation shutters, oak flooring, concealed down lighters, access to loft space, oak flooring, glass & oak staircase balustrade, part panelled walls and recessed display.

FAMILY BATHROOM: refitted, 11’ 4” x 8’ 10” (3.45m x 2.69m), tiled walls & floor, raised floor with LED lights accommodating the bath with stand alone mixer tap, upright towel radiator, back to wall WC, separate shower cubicle with tiled walls, floating washbasin with storage below and uPVC double glazed window with plantation shutters.

4 BEDROOMS:

No. 1: at rear, 15’ 11” x 12’ 5” (4.85m x 3.78m – maximum overall measurement), uPVC double glazed double opening doors and side windows leading to the balcony with stainless steel & glass balustrade providing superb panoramic open sea views from St Marys Lighthouse to Whitley Bay, double banked radiator and double fitted wardrobe.   

PLUS: EN-SUITE SHOWER ROOM: vanity unit with washbasin, low level WC, upright stainless steel towel radiator, corner shower cubicle with massage shower unit, extractor fan and illuminated mirror.

No. 2: 10’ 10” x 10’ 2” (3.30m x 3.10m), plus double fitted wardrobe, radiator and uPVC double glazed window with sea views.

No. 3: 9’ 5” x 9’ 1” (2.87m x 2.77m), radiator, uPVC double glazed double opening doors leading to the balcony with stainless steel & glass balustrade providing superb panoramic open sea views from St Marys Lighthouse to Whitley Bay and door to en-suite.

EN-SUITE JACK & JILL TOILET: panelled walls and vanity unit incorporating washbasin and WC.

No. 4: 9’ 0” x 9’ 0” (2.74m x 2.74m – maximum L shaped measurement), radiator, uPVC double glazed window with plantation shutters & open aspect looking up Kingston Drive, door to en-suite and double fitted wardrobe.

EXTERNALLY:

GARAGE: 19’ 8” x 14’ 0” (5.99m x 4.27m), electric roll over door, power, light, plumbing for washing machine and tap for hosepipe.   

GARDENS: to the front there is a large block paved driveway providing off road standage for multiple vehicles, 4 outside lights above the garage, and walled/rendered perimeter. The rear garden has an open aspect with views across The Links with sea views beyond, fenced perimeter with gate providing access to The Links, large paved patio, raised deck, artificial lawn and summerhouse.

TENURE:  FREEHOLD

COUNCIL TAX BAND: F

Kingston Close,
Whitley Bay,
NE26 1JW floorplan

Click on the link below to view energy efficiency details regarding this property.

Energy Efficiency - Kingston Close, Whitley Bay, NE26 1JW (PDF)

Map and Local Area

Request a Viewing

To request further information or a viewing, please complete the form below.

Similar Properties

Keep up to date with our latest property alerts